Vuokrattavana katutason liiketila – arvioitu valmistuminen elokuussa 2026!
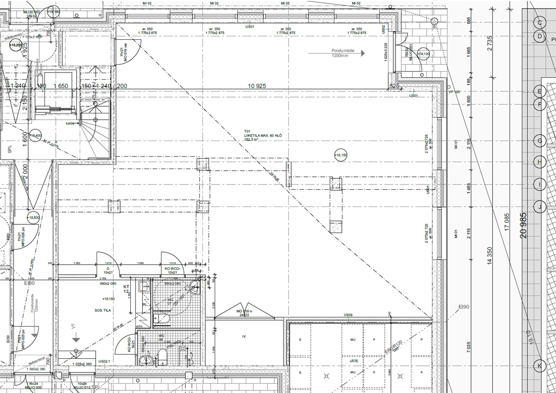
Etsiikö yrityksesi uutta toimitilaa? Tämä 182,5 m²:n katutason liiketila valmistuu arviolta elokuussa 2026. Kohde soveltuu erinomaisesti esimerkiksi liiketilaksi tai toimistokäyttöön.
Konalantie 64 sijaitsee Helsingin Konalan yritysalueella hyvien kulkuyhteyksien varrella. Läheiset Vihdintie ja Kehä I takaavat sujuvan saavutettavuuden niin autolla kuin julkisilla liikennevälineillä. Alueella on runsaasti yritystoimintaa sekä kasvava asukaspohja. Suuret ikkunat tuovat erinomaisen näkyvyyden ja luonnonvalon tilaan.
Ota yhteyttä kohteesta tästä toimitilasta. Palaamme asiaan mahdollisimman pian, kuitenkin viimeistään 3-arkipäivän sisällä.
Lähettämällä yhteyspyynnön hyväksyt tietojenkäsittelyehdot.
